| スマートのホーンボタンは、内蔵されているバネ常数が高いのか、叩いただけでは音が出ない事が多く、出たとしても少音量。 ちょい押しは全く反応無し。 なので、グイっと押すと ...... 大音量で鳴り響く 。 ちょい押しで、正規の音量で且つ、短音が出ないので、外部スイッチを付けたいと思った。

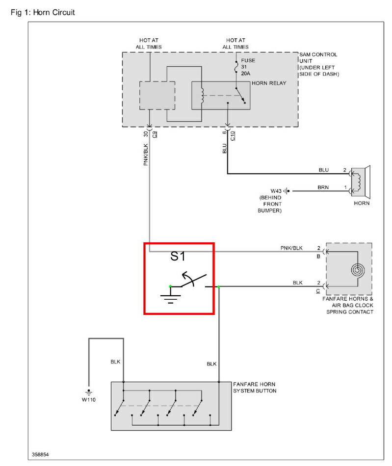
回路図を見てみると、 ホーンスイッチをGNDに落とすだけで良い。 スイッチに何を使うか、設置場所を何処にするかで悩めば良い。 しかし、ステアリング中央に有るホーンボタン内には、スイッチが4個も付いているんだ。 その割には、反応が鈍いのは残念。 外付けスイッチを付ける時、気を付けなければならないのは、ステアリングは回ると言う事。 コネクタから配線を引き出した場合(スパイラルケーブル後)、スイッチは、ステアリング上には設置出来ない。 なので、スパイラルケーブル前で、配線を引き出す必要が有る。 その箇所が、下回路図中の赤枠で示した所。

ステアリングを外す事になるので、ちょっと面倒な作業となる。
1. エアバックが絡んでいるので、バッテリーを切る。 2. コネクタ2個を抜く。(下写真の赤丸) 3. ステアリングを真っ直ぐな状態にする。 4. ステアリングは、ボルト1本でシャフトに止められている。場所は、ステアリングの真下(下写真)。 5. ステアリングが真っ直ぐである事を確認後、ステアリングを引き抜く。(ステアリングを軽く叩きながら抜くと簡単に外れる)

ステアリングが真っ直ぐな状態であれば、シャフトのノッチ部が真上を向いている( 下写真

まず、コネクタ端子で、どの端子がスイッチで、GNDかを探る。 結果が、下写真。

次は、この端子とホーンスイッチが、何処で繋がっているかを探る。 スイッチ端子は、下写真の赤丸。 GND端子は、黄丸で示した奥に有る。 いずれも、半田付けが可能な位置だった。

各線を、半田付けして配線を引き出して置く。

配線を、ホーンボタン側に引き出して置く。 後は、スイッチの選定と、設置場所だね。 機能の検証をする為に、仮組してバッテリーを繋ぐ。 そして、引き出した線同士を、ちょっと接触させると、正規の音量で且つ、短音で 鳴った。 ホーンは、こうでなくちゃね〜

後日、スイッチを設置する。
2025.2.1日 更新
配線を前面に引き出した時点では、表面実装用のスイッチを貼り付ける事を想定していたのだが .......
・ スイッチ自体が小さく押し辛い ・ 配線が見える ・ 一応、エアバック、ホーンボタンの接触を避ける為の溝は切っているが、擦れる危険性は有る?
等で、計画変更。

スイッチは、小形ながら押し易い物に変更。 これを使うと、ステアリングカバーにΦ5mmの穴を空けねばならなくなるが、機能第一。 空けた穴は戻せないが、ステアリングカバー自体 カーボン仕様のアクセサリーも売ってるので、いざとなったら使えば良いし。 また、何時でも機能を無効化出来る様に、コネクターを介してスイッチと結合する事にした。

ちょい押しで、正規の音量で且つ、短音で鳴るホーンは、やはり良いね。

|
|
|